在电气安全技术不断地发展和更新的进程中,人们注意到,大量电气事故,是由过大的电位差引起的,为防止因此而导致的种种电气事故,20世纪1960年起,国际上推广“等电位联结”安全技术的应用。现在,新建建筑物中,基本上都采用了等电位联结。
国际上,非常重视等电位联接的作用,它对用电安全、防雷以及电子信息设备的正常工作和安全使用,都是十分必要的。
根据理论分析,等电位联接作用范围越小,电气使用就越安全。
等电位联结分为:总等电位联结(MEB)和局部等电位联结(LEB) 。国家建筑标准设计图集《等电位联结安装》(02D501-2),对建筑物的等电位联结,具体做法作了详细介绍。
总等电位联结做法,是通过每一进线配电箱近旁的总等电位联结母排,将下列导电部分互相连通:进线配电箱的PE(PEN)母排、公用设施的上、下水、热力、煤气等金属管道、建筑物金属结构和接地引出线。它的作用在于降低建筑物内间接接触电压和不同金属部件间的电位差,并消除自建筑物外经电气线路和各种金属管道引入的危险故障电压的危害。
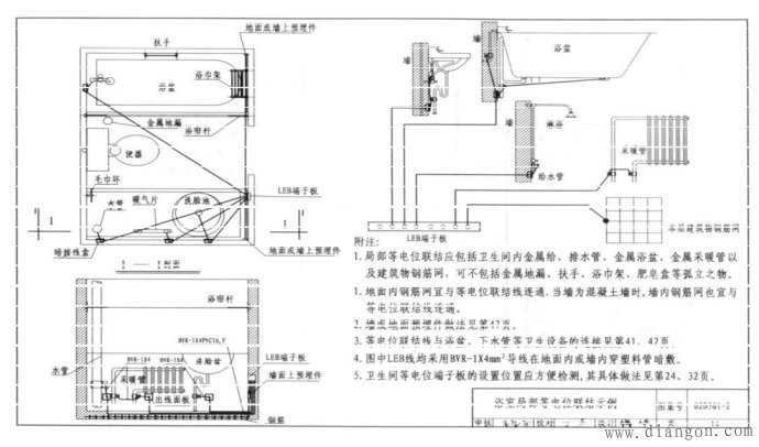
局部等电位联结做法,是在一个局部范围内,通过局部等电位联结端子板,将下列部分,用6mm2黄绿双色塑料铜芯线互相连通:柱内墙面侧钢筋、壁内和楼板中的钢筋网、金属结构件、公用设施的金属管道、用电设备外壳(可不包括地漏、扶手、浴巾架、肥皂盒等孤立小物件)等。一般是在浴室、游泳池、喷水池、医院手术室、农牧场等场所采用。要求等电位联结端子板与等电位联结范围内的金属管道等金属末端之间的电阻不超过3Ω。
1999年6月开始实行的新的建设部《住宅设计规范》中,有一项条款:城镇新建住宅中的卫生间,宜做等电位连接。
专家通俗的解释是:浴室等电位连接,就是保护你不会在洗澡的时候被电击。电热水器、坐浴盆、电热墙,浴霸,以及传统的电灯,……,都有漏电的危险,电气设备外壳,虽然与PE线联结,仍可能会出现足以引起伤害的电位,发生短路、绝缘老化、中性点偏移或外界雷电,而导致浴室出现危险电位差时,人受到电击的可能性非常大,倘若人本身有心脑方面的疾病,后果更严重。
等电位联结,使电气设备外壳,与楼板墙壁电位相等,可以极大地避免电击的伤害,其原理类,似于站在高压线上的鸟,因身体部位间没有电位差,而不会被电击。





|