注册名:
密码:
个人 企业 商务
个人注册
企业注册
商务申请
商务管理平台
企业管理平台
个人管理平台
我的工控博客
专业频道:
PLC与控制器
工控机
传感器
人机界面
阀体及定位器
变频器与传动
低压电器
工业网络
工业电源
电气绘图
企业中心:
企业
新闻
风采
产品
论坛
技术
下载
供求
招聘
工控博客
才苑
博闻
博采
博文
博坛
求职
自动化技术中心
自动化年度调查
行业频道
同城之间
自动化书籍
自动化新闻
自动化展览会
资料下载
电气手册
工控视频
中国工控网搜索:
·请教:节流阀的工作原理,什么是节流阀和止回阀?
·什么是防烟防火调节阀,它和一般的调节阀有什么不同
·请问 怎么将阀开到多少和关到多少的信号反馈回到PLC
·阀门定位器选型指南
· 推荐一种可组态型智能变频电动调节阀
·大落差管道上应该选用什么调节阀好
·请教:PLC输出点的开关频率有多高?
·征求“PLC单相高速计数判断电机正反向”方案
·玻璃窑炉天燃气燃烧系统经典图片
·马蹄焰玻璃窑炉结构
·请教:玻璃燃烧系统重油改天燃气,流量如何转换?
·水泵检修六大步骤 确保的发动机寿命
·浮法玻璃工艺机械设备安装关键
·计量泵配件是什么、起什么作用?
·直流耐压试验和工频交流耐压试验各有何特点?
·DVC5010智能式阀门定位器校准方法
·根据性能分析气动薄膜调节阀的选型
·关于现场电磁流量计的问题探讨
·电磁阀探讨
·阀门知识——球阀的特点和结构
·机电一体化智能大流量电动执行机构的研究
·调节阀的维护及在应用中的技术问题探讨
·控制阀的选型、维修与校验(二)
更多..
求职:工程设计(中专、助理工程师)
求职:部门主管(大学专科、助理工程师)
求职:软件编程(中专、技工)
查询工控论坛统计
自动化技术
自动化产品
自动化调查
自动化招聘
自动化图书
自动化资料
搜索: 本栏搜索 全栏搜索
发表新论题
请教:怎样判断电磁阀是几位几通?
以下是关于《怎样判断电磁阀是几位几通?》论题的回复(共6篇)
回复时间:2013/2/5 16:42:00
支持(1305) | 反对(1281)
最简单的就是看几个方框就是几位,每个方框里有几个油口就是几通
回复时间:2013/2/5 16:43:00
支持(2026) | 反对(1273)
电磁阀的位你就只要看有几个线圈,一个线圈是两位的,两个线圈是三位的.至于几通,就看能插几根管了,比如三根管就是三通
回复时间:2013/2/5 16:44:00
支持(1163) | 反对(1273)
比如三位四通换向阀, 就是有三个工作位置:前位、中位、后位; 有四个工作有口:一个进油口,通常用P表示 一个回油口,通常用O或T表示 两个工作有口,分别用A 、B表示
回复时间:2013/2/5 17:12:00
支持(1149) | 反对(1008)
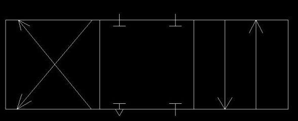
下图是三位五通阀
回复时间:2013/2/5 17:16:00
支持(1119) | 反对(1131)
下图是三位四通阀
回复时间:2018/3/14 10:24:00
支持(626) | 反对(749)
如果要回复本栏论题,请首先中国工控网www.chinakong.com
·如果你已经是中国工控网www.chinakong.com成员,请直接登录。
·如果你还不是中国工控网www.chinakong.com成员,请首先注册,注册为免费!
密 码:
关闭该窗口
更多资料下载
更多自动化产品
电动单座调节阀
堡盟位置驱动和定位驱
玻璃窑炉重油燃烧系统
玻璃窑炉天燃气燃烧系
ZJHM型精小型气动
关于我们 免责声明 服务项目 广告联系 友情链接 联系方式 意见反馈 设为首页 加入收藏
©2023-2025 中国工控网(www.chinakong.com) 版权所有 豫ICP备17046657号
管理员信箱:chinakong98@163.com 服务热线:13525974529
洛阳博德工控自动化技术有限公司
中国 洛阳